Wabi Sabi renovation project

PROJECT

422A

Size of Space
1100sqft

Sum of Renovation
$58,000

Duration of Renovation
2 months

Interior Style
Wabi Sabi, Japandi

A little about the project…

High ceilings and seaside views set the stage for this inviting minimalist Japandi interior with a playful, cozy touch. Vibrant accents bring the space to life—from the bold green kitchen backsplash paired with a terrazzo countertop, to the warmth of a walnut dining table that anchors the dining area with understated elegance.

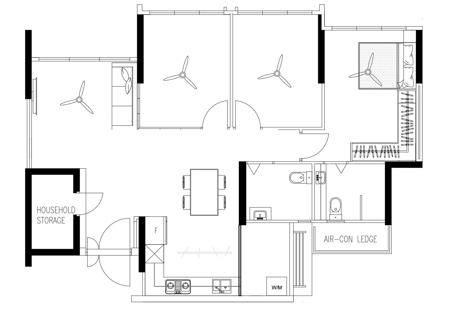
hdb floor plan

FLOOR PLAN

wabi sabi, japandi style wooden cabinet

DETAILS

japandi kitchen with terrazzo counter top, green tiled backsplash
Next
Next

Project 26